Mencari desain denah rumah 2 lantai minimalis untuk hunian impian Anda? Artikel ini akan memberikan berbagai inspirasi desain denah rumah yang efisien dan estetis.
Rumah desain minimalis memiliki banyak keuntungan yang menjadikannya pilihan favorit, terutama bagi Anda yang ingin memaksimalkan lahan terbatas.
Desain ini dirancang agar setiap sudut rumah dimanfaatkan dengan maksimal, tetap nyaman, dan tidak terasa sempit.
Selain itu, gaya minimalis cenderung hemat biaya pembangunan karena menggunakan material seperti beton ekspos, kayu, dan kaca, yang tetap mampu menciptakan tampilan modern.
Rumah minimalis juga fleksibel dalam penggunaan ruang vertikal, memberikan banyak opsi untuk area fungsional seperti kamar tidur, dapur, ruang tamu dan lain – lain. Tak hanya estetik, rumah minimalis 2 lantai mudah dirawat dan selalu terlihat rapi.
Jika Anda sedang mencari inspirasi, berikut kami sajikan 10 contoh desain denah rumah 2 lantai minimalis yang bisa menjadi referensi untuk mewujudkan hunian impian Anda.
Baca Juga : 10+ Model Teras Rumah Terbaru yang Minimalis dan Modern
Contoh Desain Denah Rumah 2 Lantai Minimalis
1. Rumah 2 Lantai Minimalis dengan Konsep Open Space di Lantai Bawah

Konsep open space sering digunakan pada rumah minimalis untuk menciptakan kesan luas. Pada lantai pertama, ruang tamu, ruang makan, dan dapur terintegrasi tanpa sekat permanen. Sementara itu, lantai atas digunakan untuk kamar tidur dan area privasi.
2. Rumah dengan 3 Kamar Tidur

Jika Anda memiliki keluarga besar, desain ini sangat cocok. Lantai bawah dapat dimanfaatkan untuk satu kamar tidur tamu, ruang keluarga, dapur, dan kamar mandi. Sedangkan lantai atas digunakan untuk dua kamar tidur utama dan area kerja atau ruang belajar.
3. Rumah 2 lantai dengan Balkon Multifungsi

Balkon tidak hanya sebagai tempat bersantai, tetapi juga bisa dimanfaatkan sebagai taman mini. Desain denah ini memberikan sentuhan hijau di lantai atas, membuat suasana rumah lebih segar dan asri.
4. Rumah lantai 2 minimalis dengan Garasi Luas

Bagi Anda yang memiliki kendaraan lebih dari satu, desain ini menyediakan garasi di lantai pertama yang cukup luas tanpa mengorbankan ruang utama seperti ruang tamu atau dapur.
5. Rumah 2 lantai dengan Tangga Spiral

Tangga spiral menjadi pilihan unik dan hemat ruang untuk rumah minimalis. Letakkan tangga ini di tengah rumah untuk mempermudah akses ke lantai atas tanpa menghabiskan banyak tempat.
6. Rumah 2 Lantai dengan Ruang Keluarga di Lantai Atas

Untuk memberikan privasi lebih, ruang keluarga bisa ditempatkan di lantai dua. Sementara itu, lantai bawah difokuskan pada ruang tamu dan dapur sebagai area publik.
7. Rumah 2 Lantai dengan Taman Dalam Ruangan

Desain ini menghadirkan taman kecil di dalam rumah untuk sirkulasi udara yang lebih baik. Taman ini biasanya diletakkan di dekat ruang tamu atau di tengah rumah sebagai focal point.
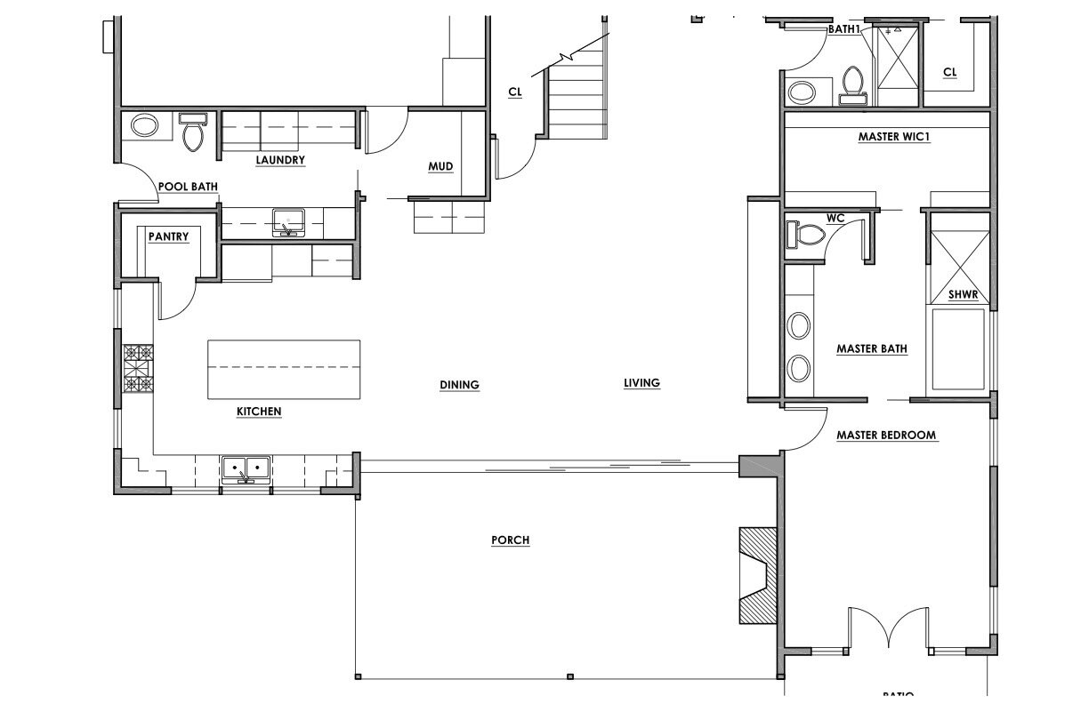
8. Rumah 2 Lantai dengan Kamar Tidur Utama yang Luas

Jika prioritas Anda adalah kenyamanan, desain ini menyediakan kamar tidur utama yang luas di lantai atas, lengkap dengan kamar mandi dalam dan walk-in closet.
9. Rumah 2 Lantai dengan Rooftop

Rooftop dapat menjadi area tambahan untuk bersantai atau berkumpul bersama keluarga. Denah ini memungkinkan pemanfaatan atap rumah sebagai ruang fungsional yang estetik.
10. Rumah 2 Lantai dengan Kombinasi Dapur Terbuka

Konsep dapur terbuka semakin populer di rumah minimalis. Denah ini memanfaatkan area belakang rumah untuk dapur yang langsung terhubung dengan taman kecil, menciptakan suasana memasak yang lebih menyenangkan.
Memilih denah rumah 2 lantai minimalis adalah langkah penting untuk menciptakan hunian nyaman dan fungsional. Dari berbagai desain di atas, Anda bisa menyesuaikan pilihan sesuai kebutuhan dan gaya hidup Anda. Jangan lupa, konsultasikan dengan arsitek atau desainer profesional agar hasilnya sesuai harapan.
Semoga artikel ini membantu Anda menemukan inspirasi untuk rumah impian!
